 
 工程制图基础知识是现代钣金加工工艺的基础,学习行业制图标准及其有关知识,培养绘制和阅读钣金工程图样,是诚瑞丰钣金工程师的一项基本能力。
     
(一) 图纸幅面及格式
图纸幅面及格式如下表所示
     
1、图纸幅面
图纸是绘图的载体,标准的图纸幅面共有五种,分别为A0A1A2A3A4。
2、图框格式
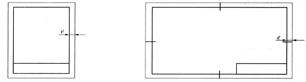
在图纸上用粗实线画出的线框,对于需要装订的图纸,其图框尺寸通常为a=25mm,c=5mm或10mm。
     
若图纸不留装订变,则e=20或10mm,如下图
    
 
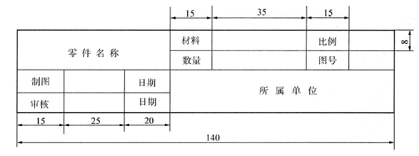
(二) 钣金加工工艺图纸的标题栏
标题栏位于每张图纸右下角的图框,与看图方向一致。标题栏外框线一律用粗实线绘制,右边和底边与图框线重合,内部分割线用细实线绘制,如下图。
     
(三) 钣金图纸上的字体
字号:国标中以字体高度海标字体的号,如字高系列1.8,2.5,3.5,5,7,10,14,20(mm)等。
字体:图样上的汉字应写成仿宋体,并采用国家正式公布推行的简化字。汉字的高度h应不小于3.5mm,字体的宽度约等于字体高度的2/3.
要求:字体工整、笔画清楚、间隔均匀、排列整齐。
以上就是钣金加工工艺的图纸基础知识,图纸的制作注重对细节的把控,尤其是对精度要求很高的钣金件,一张优质的图纸能带来更好的加工效果。更多详情欢迎联系诚瑞丰科技股份有限公司。
    