关于冲压模具下模调装的知识,这里普及一下,中山精密五金公司根据实际工作经验,对细节进行记录,于是有了一下知识的积累。
上模反装主要是考虑避位:尺寸小需避位。
     
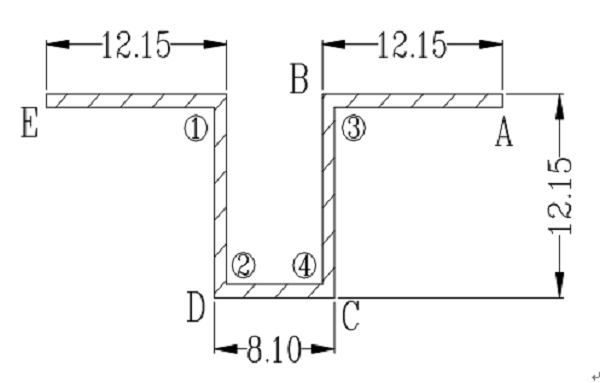
尺寸较小,需采用117#,最后成形第。如果上模正装,就必须采用E处或D处作定位。E处或D处定位很麻烦,且尺寸难以保証,下模又需反装。如果采用上模反装,以B处作定位,下模正装(因为前几道工序下模全部都为正装),这就很方便折弯,又可避位。如下图:
     
    
折弯线旁有抽形抽孔压桥等其他加工方式,需要避位。如图: 由于桥形先压了,要靠A折B处,DB处的内尺寸为4。2mm,只能选用117#刀。如果上模正装,将会把桥形压变形,反装才能避开桥形,内部小折定位尺寸如果采用角度模式多工程输入。即从折弯线到定位边的尺寸再加一个料厚,如果采用MDI输入,即从折弯线到定位边的尺寸再加K/2(0。4t/2=0。2t)采用角度输入: 折C处输入定位尺寸为:AC+T,采用MDI输入: 折C处输入定位尺寸即为: AC+K/2。
尽量以未折边为定位边,中山精密五金公司以最近位置选取定位边,尽量以冲压模具宽边作为定位边。
    